您好!欢迎光临佛山市海派厨房设备工程有限公司,我们竭诚为您服务!
咨询热线4008-925-883
您的位置:主页 > 设计方案 > 设计案例CAD图 >
联系我们

佛山市海派厨房设备工程有限公司

邮 箱:weigy88@163.com
手 机:13690255888
电 话:4008-925-883
办公地址:佛山市禅城区轻工三路13号
生产地址:佛山市狮山镇朗下工业区

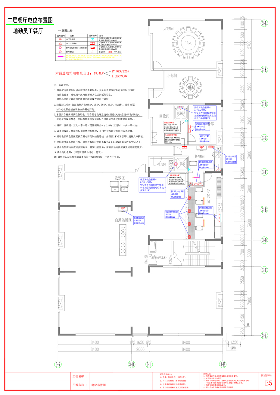
二层电位

发布时间:2020-02-16 07:39:00人气:
4008-925-883